并建监字[2012]13号
各建设、施工、监理单位:
针对建设部大检查和我站日常监督检查过程中发现的施工质量问题,如剪力墙竖向钢筋根部位移;卫生间填充墙底部混凝土翻边混凝土强度差、与楼板连接不牢固;二次结构植筋拉拔强度不足,植筋质量达不到规范要求;阳台栏板水平筋与主体无可靠拉结;基础土方回填存在未分层夯实、垃圾等杂物未清理等现象。为确保基础、主体施工质量并满足使用功能要求,现做以下规定,各建设、监理、施工单位遵照执行。
一、主体二次结构施工质量
1、阳台栏板采用钢筋混凝土浇筑时,每一根水平筋必须与栏板两侧主体结构可靠连接;栏板采用填充墙时,墙体拉结筋必须与栏板两侧主体结构可靠连接。
阳台栏板及窗台压顶应放置水平筋且与主体结构相连接。
2、当有门窗洞口的填充墙尽端至门窗洞口边距离小于240mm时,应采用钢筋混凝土浇筑,混凝土强度等级不应小于C20。
3、按照《建筑地面工程施工质量验收规范》(GB50209-2010)第4.10.11条的规定,厕浴间和有防水要求的房间的楼板四周除门洞外应做混凝土翻边,高度不应小于200mm,宽同墙厚,混凝土强度等级不应小于C20。二次浇筑混凝土翻边时必须对楼板进行凿毛、冲洗,保证与楼板紧密结合。
混凝土翻边要求按下图配筋:
4、按照《砌体结构工程施工质量验收规范》(GB50203-2011)第9.2.3的规定,填充墙与承重墙、柱、梁的连接钢筋,当采用化学植筋的连接方式时,施工过程应严格按照钻孔、清孔、清理钢筋、灌胶、植入钢筋的施工工艺进行。锚固钢筋拉拔试验的轴向受拉非破坏承载力检验值应为6kN。拉拔试验合格后,方可大面积进行施工。
5、飘窗板与空调板应尽量与主体结构同时浇筑。如无法同时浇筑,必须保证板钢筋的预留位置准确,确保受力钢筋的混凝土保护层厚度满足规范及设计要求。二次浇筑时,必须对施工缝处混凝土进行剔凿、冲洗,不得有夹渣。浇筑时,应振捣密实,若出现严重的蜂窝、露筋、孔洞、裂缝等质量缺陷,应拆除返工重做。主体结构验收前,对飘窗板的受力钢筋保护层进行全数检测,并提供检测报告。
二、基础回填土施工质量
1、基础土方回填土料应符合设计要求。
2、土方回填前应清除基底的垃圾、树根等杂物,抽除坑内积水、淤泥、验收基底标高;且应对基础防水施工质量进行检查,确保无破损。
3、土方回填应按设计要求进行分层回填、分层压实,严格控制每层虚铺厚度,压实后应对压实系数进行检测,检测时要求必须在施工现场取样试验,出具检测数据,经监理确认回填土压实系数满足设计要求后方可进行下一层回填。
三、排烟排气道材料及施工质量
1、厨房、卫生间排烟排气道的规格、结构、材质,必须符合设计图纸和有关规范、标准的要求。
2、排烟排气道进场时,必须由监理单位进行验收,产品应提供出厂合格证和产品型式检验报告,同时,对外观质量进行查验。凡不符合技术标准要求或检验报告伪造、篡改、过期以及外观查验不合格的产品坚决清退出场。
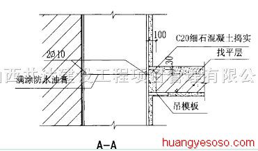
3、排气烟道拼缝处应满涂防水油膏。(见图A-A)
4、排气烟道拼接过程中,在楼板预留洞口处使用2根圆10钢筋进行植筋处理,钢筋间距同排气烟道宽度。(见图B-B)
5、施工过程中,如对排烟排气道的垂直承载力、抗柔性冲击、耐火极限等物理性能有怀疑,可进行现场见证取样,委托法定检测机构进行检验,如检验结果不合格,必须将该产品全数清退出场。
施工单位应严格按上述要求进行施工,做好技术交底,加强原材料进场验收和施工过程质量控制,施工质量达不到要求的不得进行验收。监理单位应严格履行监理职责,严把工程质量验收关,如发现有违反上述规定的,应责令施工单位立即改正。建设单位应督促各参建单位按上述要求进行施工、检查、验收,不得明示或暗示施工、监理单位违反上述规定,降低工程质量。
本规定自文件下发之日起实行。
二0一二年十月二十二日
抄报:市住建委石永明副调研员
抄送:市住建委质安处



